Amid all the many construction projects in town, including, yeah, THAT ONE, the long-awaited work to “calm” Ladera Dr. N.W. on the city’s west side has begun. This first phase of the project generally concerns the winding stretch alongside Ladera Golf Course, from Coors to Ouray.
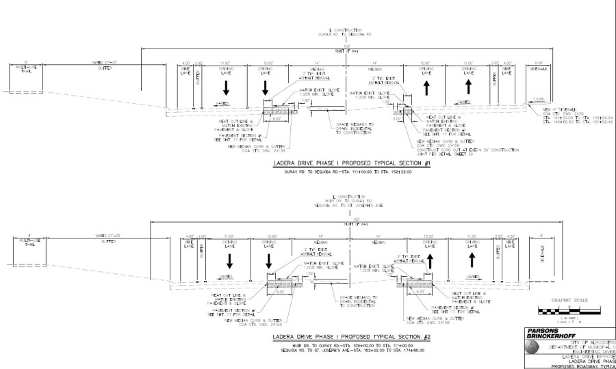
The new road configuration matches the dimensions of other calming projects and new roads, with driving lanes narrowed from 11 and 12 feet to 10 and 11. The extra feet created from this and a slightly narrower median go toward a new bike lane (4 feet) and buffer (2 feet). Here’s the cross-section of the Ouray to Sequoia segment (Note: This is taken from a presentation a few months back; small differences might exist in the final implementation):

As noted in news reports, the principal reason for the work is the speeding problem created by the existing road engineering. More cynical cyclists among us might regard this treatment as “slowing traffic via human cycling shields,” but a new bike lane and buffer will certainly appeal to most.
However, in a stretch like this, particularly with very few ingress/egress points along the golf course, physical/vertical separation (e.g., delineators, parking curbs) in the buffer makes a great deal of sense. Given that there is a parallel multi-use path (MUP) along the golf course, bike lane ridership without such physical separation might remain very low, despite the buffer.
As the City continues to evolve its bike infrastructure, questions regarding the desirability of parallel bike lane/MUP treatments will continue to pop up. Nobody in the cycling/pedestrian advocacy world wants to “backtrack” from an advance, but piling these advances in arguably inefficient ways might be ultimately detrimental.